Grzejniki kanałowe Aquilo F2C przeznaczone są do montażu w podłogach pomieszczeń i mogą być wykorzystywane zarówno do ich ogrzewania lub chłodzenia. Elementem grzejnym lub chłodzącym jest miedziano-aluminiowy wymiennik ciepła, pomalowany na kolor czarny, zamontowany w wannie ze stali nierdzewnej, także pomalowanej na kolor czarny.
Grzejniki Aquilo F2C wyposażone są w cichobieżne wentylatory odśrodkowe zamontowane w wannie obok wymiennika, w liczbie zależnej od długości wymiennika, zapewniające wymuszony obieg powietrza i przez to odpowiednio wyższą wydajność cieplną lub chłodniczą grzejnika.
Wentylatory napędzane są silnikami zasilanymi napięciem 12 V. Od góry grzejnik zabezpieczony jest poprzeczną kratką maskującą wykonaną z materiału z oferty producenta, którą należy zamawiać osobno. Podłączenie wymiennika do dwururowej instalacji grzewczej lub chłodniczej poprzez dwa króćce z gwintem wewnętrznym G½". Obowiązkowe wyposażenie elektryczne, które należy zamówić dodatkowo, stanowi odpowiednio dobrany transformator (natynkowy lub podtynkowy) oraz regulator naścienny sterujący obrotami wentylatora.
|
Szerokość: |
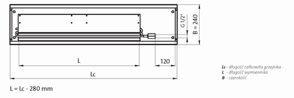
240 mm |
| Długość: | 600, 1000, 1400, 1800 mm |
| Wysokość: | 110 mm |
| Materiał wymiennika : | rurki miedziane z nałożonymi lamelami aluminiowymi |
|
Wyposażenie wymiennika: |
odpowietrznik ręczny, korek spustowy, zestaw giętkich przyłączy ze stali nierdzewnej o długości 10 cm z gwintem G ½" |
|---|---|
| Materiał wanny: | standard: blacha stalowa obustronnie ocynkowana, od wewnątrz lakierowana proszkowo na kolor czarny RAL 9005, opcjonalnie: stal nierdzewna |
|
Wyposażenie wanny: |
śruby poziomujące M8x30 mm z sześciokątem wewnętrznym (dla długości wanny do 2,5 m – 4 szt., powyżej 2,5 m – 6 szt.), 4 elementy mocujące do podłoża ze śrubami mocującymi do wanny, wyłamywane przepusty dla podłączenia instalacji grzewczej lub chłodniczej + 2 gumowe przepusty do podłączenia instalacji elektrycznej, pokrywa z blachy stalowej maskująca przyłącza do wymiennika, płyta wiórowa chroniąca wymiennik i wannę przed uszkodzeniem lub zanieczyszczeniem w czasie montażu a także zabezpieczająca przed zdeformowaniem wanny podczas betonowania |
| Materiał kratki : | drewno (dąb, buk); duraluminium w kolorach do wyboru: naturalny, złoty, jasny brąz, ciemny brąz lub czarny; stal nierdzewna |
|
Wyposażenie elektryczne standardowe: |
1 moduł z wentylatorami odśrodkowymi napędzanymi silnikiem na napięcie 12V/50 Hz (liczba wentylatorów w danym module zależy od długości grzejnika). Na jeden moduł przypada jeden silnik. |
|
Wyposażenie elektryczne dodatkowe, obowiązkowe: |
transformator PAT (~230/12 V) dobierany do wielkości grzejnika lub grupy grzejników w zależności od ilości podłączanych silników oraz przełącznik ręczny lub termostat pokojowy z ręcznym lub automatycznym przełącznikiem obrotów do regulacji wydajności cieplnej lub chłodniczej grzejnika poprzez trzystopniową zmianę obrotów wentylatorów (możliwość wyboru termostatu ze zdalnym sterowaniem za pomocą pilota). |
| Przyłącza wodne: | 2 x G 1/2" – gwint wewnętrzny |
| Ciśnienie robocze: | 10 bar |
| Temperatura maksymalna: | 110oC |
|
Ciśnienie próbne: |
13 bar |
UWAGA! Zabrania się zasilania grzejnika F2C bezpośrednio z sieci o napięciu ~230 V. Obowiązkowo należy zastosować odpowiedni rodzaj transformatora PAT.
rzut z boku:

przykładowy rzut z góry:

Moc cieplna [W] grzejników kanałowych Aquilo F2C przy temperaturze powietrza w ogrzewanym pomieszczeniu ti = 20oC
| Wysokość (mm) Szerokość (mm) |
szerokość 240mm, wysokość 110mm | |||||
| Długość (mm) |
moc chłodnicza [W] |
moc cieplna [W] |
liczba silników |
typ transformatora |
moc elektryczna [W] |
|
| 600 | 75/65/20°C | 878 | 1 |
PAT-02 | 11 | |
| 70/55/20°C | 741 | |||||
| 55/45/20°C | 524 | |||||
| 6/12/26°C | 242 | |||||
| 1000 | 75/65/20°C | 1975 | 1 | 11 | ||
| 70/55/20°C | 1667 | |||||
| 55/45/20°C | 1178 | |||||
| 6/12/26°C | 544 | |||||
| 1400 | 75/65/20°C | 3072 | 1 | 11 | ||
| 70/55/20°C | 2593 | |||||
| 55/45/20°C | 1832 | |||||
| 6/12/26°C | 846 | |||||
| 1800 | 75/65/20°C | 4169 | 1 | 11 | ||
| 70/55/20°C | 3518 | |||||
| 55/45/20°C | 2486 | |||||
| 6/12/26°C | 1148 | |||||






Zalecane wykonanie kratki dla wersji basenowej ze stali nierdzewnej.
W obiektach gdzie mogą występować duże obciążenia mechaniczne kratek (salony samochodowe, sale gimnastyczne) zaleca się stosowanie kratek z duraluminium lub stali nierdzewnej.
Kratki do grzejników Aquilo wykonane z buku lub dębu surowego mają wilgotność ok. 10%. Aby umożliwić klientowi nadanie odpowiedniej barwy według indywidualnych potrzeb, nie są fabrycznie zabezpieczone żadnym lakierem.
Jednakże w czasie składowania lub po zamontowaniu ze względu na możliwość wchłaniania wilgoci z otoczenia kratki z drewna surowego mogą ulegać wydłużeniu nawet o 2-3 mm na każdy metr długości kratki. Aby uchronić się przed negatywnymi skutkami tego zjawiska należy chronić kratki przed możliwością zawilgocenia. Malowanie olejem lub lakierem eliminuje niepożądane efekty wydłużania się i skracania kratek drewnianych. W przypadku zawilgocenia, kratki lakierować dopiero po ich wyschnięciu i osiągnięciu z powrotem wymaganej długości, odpowiedniej do wymiarów wanny.
|
drewniana, poprzeczna |
|
| duraluminium, poprzeczna Zwijana kratka poprzeczna z duraluminiowymi (eloksowanymi) poprzeczkami Dostępne kolory: naturalny, złoty, jasny brąz, ciemny brąz lub czarny Kratka jest standardowo dostarczana w wersji PMO czyli bez listwy wykończeniowej Wolny przepływ: 71% |
|
|
duraluminium, podłużna
|
|
| stal nierdzewna, poprzeczna Zwijana kratka poprzeczna z poprzeczkami ze stali nierdzewnej Gatunek stali: 1.4301 Kratka jest standardowo dostarczana w wersji PMO czyli bez listwy wykończeniowej Wolny przepływ: 58% |
|
|
stal nierdzewna, podłużna |
|


do doboru mocy cieplnej cieplnej grzejników kanałowych Aquilo dla parametrów innych niż 75/65/20°C.jpg)
Przykład: Grzejnik: FMK-26-100-11, moc cieplna 75/65/20 °C: QN = 266 W
Temperatura zasilania: 55 °C. Temperatura powrotu: 45 °C. Temperatura powietrza: 20 °C. Współczynnik korekcyjny K1 = 0,49
Obliczona moc cieplna: Q = QN x K1 = 266 W x 0,49 = 130 W
1. Paneļu radiatori PURMO tiek laisti tirdzniecībā un apritē atbilstoši Eiropas Parlamenta un Eiropas Padomes Regulai (ES) Nr. 305/2011, kas noteic saskaņotus būvizstrādājumu tirdzniecības nosacījumus.
2. Rettig Sp.z.o.o. (turpmāk tekstā – Garantētājs) Eiropas Savienības teritorijā nodrošina slēgtās centrālapkures padeves tīkliem pievienotajiem PURMO radiatoriem desmit gadu ilgu garantijas laiku (no iegādes datuma), taču ne ilgāk kā 11 gadus pēc ražošanas datuma, kas ir norādīts uz radiatora.
Desmit gadu garantija attiecas uz radiatoriem, kas ir ražoti kopš 06.03.2007.
3. Garantija attiecas uz radiatoriem, kas ir pievienoti centrālapkures ūdens padeves tīklam:
• slēgtā sistēmā ar izplešanās tvertni;
• tiek apgādāti ar ūdeni no siltuma centrāles, katlu mājas vai siltumsūkņa;
• ir izgatavoti no melnā tērauda/vara vai plastmasas caurulēm ar difūzijas barjeru;
• ir aprīkoti ar vietējiem atgaisotājiem (nav pieļaujama tīkla centrālā atgaisošanas sistēma);
• ir uzstādīti dzīvojamās, biroju ēkās, servisa stacijās un citās ēkās, kas nav pakļautas koroziju izraisošu vielu ietekmei un kurās radiatoru virsmas pastāvīgi vai periodiski nav pakļautas mitruma iedarbībai.
Purmo paneļu radiatoru uzstādīšana mazās atvērta tipa sistēmās (līdz 25 kW) ir atļauta ar nosacījumu, ka tiek izmantoti korozijas inhibitori.
Ja garantijas laikā tiks konstatēti radiatoru un to elementu defekti, kas ir radušies ražotāja vainas dēļ, un par tiem tiks paziņots ne vēlāk kā mēnesi pēc to konstatēšanas, radiatori vai to elementi tiks nomainīti ar jauniem.
4. Garantija stājas spēkā, ja:
• ir pieejams pirkuma dokuments, par kādu ir uzskatāms faktūrrēķins;
• radiatori ir uzstādīti ūdens centrālapkures sistēmā atbilstoši valsts tehniskajiem normatīviem un standartiem;
• tiek ievērotas Garantētāja prasības, kas ir iekļautas Purmo paneļu radiatoru lietošanas noteikumos.
5. Maksimālais darba spiediens centrālapkures sistēmā, kurai ir pievienoti PURMO paneļu radiatori, nedrīkst pārsniegt 10bar (6bar Vertical radiatoriem), bet maksimālā darba temperatūra nedrīkst būt augstāka nekā 110°C.
Augstās ēkās un augstceltnēs jālieto atsevišķās zonās sadalītas sistēmas. Sistēmas hermētiskuma pārbaude jāveic ar pārbaudes spiedienu, kas par 2bar pārsniedz attiecīgās sistēmas darba spiedienu, taču tas nedrīkst būt mazāks nekā 4bar. Maksimālais pieļaujamais spiediens sistēmas hermētiskuma pārbaudes laikā ir 12bar (Vertical radiatoriem – 8bar).
6. Garantija neattiecas uz radiatoriem, kas ir uzstādīti:
• centrālapkures sistēmā, kas ir savienota ar augstas temperatūras siltumtīklu ar hidroelevatora vai maisīšanas sūkņu mezgla starpniecību;
• slēgtajos baseinos, automazgātavās, veļas mazgātavās, lopkautuvēs, sabiedriskajās tualetēs, vannas istabās un citās telpās, kur gaisā ir koroziju izraisošas vielas, kā arī vietās, kur radiatoru virsmas pastāvīgi vai periodiski tiek pakļautas mitruma iedarbībai – tas neattiecas uz galvanizētajiem radiatoriem ar papildu pretkorozijas aizsardzību –, kam garantijas laiks ir seši gadi, taču ne ilgāk kā septiņi gadi no izgatavošanas datuma;
• centrālapkures sistēmā, kas ir savienota ar ūdensapgādes sistēmu, savienojuma vietā neuzstādot pretatplūdes armatūru;
• centrālapkures sistēmā, no kuras ūdens tiek izlaists biežāk un uz ilgāku laiku, nekā nepieciešams paredzēto ekspluatācijas prasību izpildei;
• tvaika sistēmās;
• centrālapkures sistēmās, kurās pievadītā ūdens kvalitātes vērtējums neatbilst ieteicamajiem kritērijiem, tas ir,
• kopējais hlorīda un sulfāta jonu saturs nedrīkst pārsniegt 150mg/l (sistēmās ar vara caurulēm – 50mg/l);
• skābekļa saturs nedrīkst pārsniegt 0,1mg/l;
• ūdens pH vērtībai jābūt no 7,0 līdz 10,0;
• kopējā ūdens cietība nedrīkst pārsniegt 4,0 mval/l.
7. Garantija neattiecas uz radiatoru vai to elementu (kronšteinu) bojājumiem, kas ir radušies nepareizas ekspluatācijas, glabāšanas, transportēšanas, kā arī mērķim neatbilstīgas lietošanas rezultātā. Šis nosacījums jo īpaši attiecas uz radiatoriem:
• kas pirms uzstādīšanas ir glabāti zem klajas debess;
• kam ir mehāniski bojājumi;
• kas no iekšpuses ir piesārņoti ar cietām daļiņām vai kaitīgiem šķidrumiem;
• kas ir deformēti pārmērīga spiediena vai sistēmas statiskā spiediena ietekmē;
• kas ir deformēti sasalšanas dēļ;
• kam ir mehāniski bojājumi, ko ir izraisījusi sēdēšana uz radiatora.
8. Uzstādīšanas laikā radiatoram jāatrodas oriģinālajā iepakojumā. Šo iepakojumu nedrīkst noņemt arī tad, ja centrālapkures sistēma tiek ieslēgta ēkas apsildei apdares darbu laikā vai žāvēšanas nolūkā. Radiatora iepakojumu ir ieteicams noņemt tikai pēc visu apdares darbu pabeigšanas.
Radiatori ir periodiski jātīra. Ieteicams izmantot vienīgi mīkstu un maigu audumu, ko var viegli samitrināt. Radiatoru tīrīšanai nav ieteicams izmantot stipras vai kodīgas vielas (piemēram, skābos šķīdinātājus vai hloru saturošus līdzekļus). Paneļu radiatorus aizliegts izmantot mitru vai slapju priekšmetu žāvēšanai, uzliekot tos uz radiatora. Garantijas pieteikumi attiecībā uz lakoto virsmu bojājumiem, kas ir radušies nepareizas ekspluatācijas vai uzturēšanas rezultātā, netiks apstiprināti.
9. Ir aizliegts iztukšot un atstāt bez ūdens visu sistēmu vai tās daļu. Tas attiecas arī uz jaunām sistēmām, kam tiek veikta hermētiskuma pārbaude. Ja nepieciešams iztukšot sistēmu, piemēram, lai veiktu remontu vai uzturēšanas darbus, ūdens jāizlaiž tikai no tās sistēmas daļas, kurā ir paredzēts veikt attiecīgos darbus. Pēc darbu pabeigšanas sistēma vai tās daļa nekavējoties jāpiepilda ar ūdeni. Sistēmas piepildīšanai vai papildu uzpildei izlietotā ūdens daudzums jākontrolē, piemēram, ar ūdens skaitītāja palīdzību.
10. Izstrādājuma garantija ir spēkā tikai tad, ja pircējs nav veicis attiecīgā izstrādājuma remontu vai pārveidojumus vai uzdevis to veikt trešām personām bez saskaņošanas ar Garantētāju.
11. Ja garantijas laikā tiek konstatēti defekti, tiek uzsākta reklamācijas procedūra, kuras ietvaros pircējs iesniedz pārdevējam reklamāciju uz īpašas veidlapas, sīki aprakstot izstrādājuma bojājumu un tā izcelsmi. Pārdevējs pieņem reklamācijas iesniegumu un ar ierakstītas vēstules, faksa vai e-pasta starpniecību nosūta to Garantētājam 24 stundu laikā pēc saņemšanas. Nepilnīgi sniegtu datu gadījumā veidlapu nosūta atpakaļ pabeigšanai. Veidlapai jāpievieno arī faktūrrēķins vai tā kopija. Īpašos gadījumos Garantētājs var pieprasīt attiecīgā izstrādājuma fotodokumentāciju. Garantētājam ir pienākums rakstveidā atbildēt uz sūdzību 14 dienu laikā kopš aizpildītas veidlapas saņemšanas.
12. Izskatot iesniegumu, Garantētājs veic attiecīgā izstrādājuma apskati, kas var notikt radiatora uzstādīšanas vietā vai citā vietā pēc Garantētāja izvēles. Pircējam līdz pārbaudei ir jāsaglabā piegādei izmantotais oriģinālais iepakojums, ja radies bojājums ir ar mehānisku izcelsmi. Ja reklamācija tiek atzīta par pamatotu, Garantētājs apņemas saremontēt vai nomainīt tās izstrādājuma daļas, kas tika atzītas par bojātām nepareizas izgatavošanas vai materiālu defektu dēļ, vai nomainīt visu radiatoru ar jaunu un nebojātu. Konkrētos gadījumos (piemēram, ja produkts ir jānosūta no ārzemēm) Garantētājam ir tiesības pagarināt reklamācijas atzīšanas termiņu, kas parasti ir 14 dienas.
Ja defekts neietekmē radiatora funkcionalitāti, Garantētājs var piedāvāt arī atlaidi.
Ja reklamācija attiecas uz izstrādājumu, kura ražošana ir pārtraukta, Garantētājs piedāvās ekvivalentu izstrādājumu ar līdzīgiem parametriem vai arī pilnu garantētu atmaksu pirkuma summas apmērā. Garantētājs nenodrošina pagaidu izstrādājumu periodam, kamēr notiek reklamācijas izskatīšana.
13. Garantētājs patur tiesības izvēlēties reklamācijas prasības apmierināšanas veidu pēc saviem ieskatiem.
Ja reklamācija tiek atzīta kā izstrādājuma nomaiņa, visus montāžas materiālus piegādā pilnvarots PURMO servisa centrs. Ja rodas sarežģījumi, veicot nomainītā radiatora uzstādīšanu, piemēram, trūkst vārsta, lai atdalītu radiator no apkures sistēmas, servisa centrs var atteikties izjaukt vai uzstādīt jaunu radiatoru. Tādā gadījumā tiek uzskatīts, ka Garantētājs ir izpildījis garantijas prasības.
14. Garantijas laiks tiek pagarināts par remonta izpildes laiku, ko aprēķina no dienas, kad izstrādājums ir nogādāts Garantētājam, līdz remonta pabeigšanas dienai. Nomaiņas gadījumā jaunajam izstrādājumam tiek piešķirts jauns garantijas termiņš.
15. Garantētājs patur tiesības bez iepriekšēja brīdinājuma ieviest savos izstrādājumos izmaiņas, ja vien tās neattiecas uz tehniskām īpašībām, kas ietekmē radiatora izvēli.
16. Šie pārdotās preces garantijas noteikumi neizslēdz un neierobežo ar preces neatbilstību līgumam saistītās pircēja tiesības un nav pretrunā tām.
17. Garantijas nosacījumi ir spēkā šādā redakcijā kopš 25.12.2014.
Purmo Group Latvia SIA
Maskavas iela 418b, Rīga, LV-1063
Tel: +371 67 808 110
e-pasts: [email protected]
www.purmo.com/lv/