Вентиляционная система Purmo Air
Это современная система, позволяющая снабжать помещение свежим, очищенным и подогретым наружным воздухом.
Система Purmo Air состоит из типового панельного радиатора Purmo тип 11, 22 или 33, а также небольшого вентиляционно-фильтрующего комплекта, установленного под радиатором.
Она предназначена для использования в водяных системах центрального отопления, оборудованных механической вытяжной вентиляцией.
Идею создания этой системы породила необходимость обеспечения требуемого количества и качества наружного воздуха во вновь строящихся зданиях с герметически закрывающимися окнами. Низкое качество воздуха внутри помещений является следствием высокого содержания углекислого газа, чрезмерной влажности и выделения вредных веществ строительными материалами и элементами внутренней обстановки.
Неблагоприятные изменения воздуха, вызванные отсутствием надлежащей вентиляции, вредны для здоровья жильцов и могут являться причиной заражения зданий грибком.
Поэтому они представляют собой серьёзную экономическую проблему, поскольку стоимость лечения лиц, пребывающих в плохо вентилируемых помещениях, а также стоимость ремонта отсыревших зданий зачастую превышает экономию, получаемую от снижения расходов на отопление помещений, благодаря ограниченной вентиляции.
Система Purmo Air позволяет снабжать помещение отфильтрованным и подогретым воздухом в количестве, необходимом с санитарной точки зрения, без дополнительных расходов на энергию.
Систему Purmo Air можно устанавливать на таких объектах, как жилые здания, гостиницы, больницы, общественные здания, дома социального обеспечения и другие. Возможность очистки поступающего воздуха особенно существенна для лиц с предрасположением к аллергии. Система имеет аттестат Государственного гигиенического учреждения.
Принцип действия системы несложен. По каналу диаметром 100 мм, находящемуся за радиатором в наружнойстене, воздух попадает в фильтрационную камеру. После фильтрации этот воздух нагревается, проходя через радиатор. Чистый и нагретый, он бесшумно поступает в помещение. Вентиляционная система Purmo Air не вызывает дополнительного расхода энергии.
На сегодняшний день наиболее широко Purmo Air используется в Финляндии и Швеции, где каждый четвертый радиатор снабжен устройством подачи свежего воздуха.
Технические данные:
| Класс Фильтрации: | F7 |
| Высота радиаторов в системе: | 300,450, 500, 600 мм |
| Длина радиаторов в системе: | 700*, 800, 900, 1000, 1100, 1200, 1400, 1600, 1800, 2000, 2300, 2600, 3000 мм |
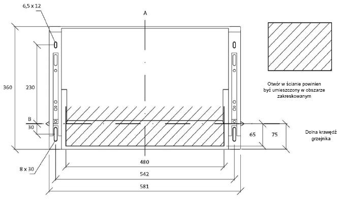
| Высота: | 360 мм |
| Ширина: | 581 мм |
| Глубина: | AIR11, AIR21, AIR22 |
| Масса: | около 2 кг |
| Цвет: | RAL 9016 белоснежный |
| Обработка поверхности: | щелочная промывка, окраска порошковой эпоксидно-полиэфирной краской, обжиг при температуре 200 °C |
| Сертификат соответствия: | HK/B/0437/02/2007 |
| Гарантия: | 10 лет |
* Длина 700 мм доступна только для радиаторов PURMO тип C
Толщина стали в соответствии с EN-442
![]() |
![]() |
Тепловая мощность радиаторов «PURMO C» и «PURMO V» с использованием одного комплекта «PURMO Air»:
| Высота | 300 | 450 | 500 | 600 | |||||||||||||
|---|---|---|---|---|---|---|---|---|---|---|---|---|---|---|---|---|---|
| Длина | тип | C, CV | C, CV | C, CV | C, CV | ||||||||||||
| tz/tp | 11 | 21s | 22 | 33 | 11 | 21s | 22 | 33 | 11 | 21s | 22 | 33 | 11 | 21s | 22 | 33 | |
| 700* | 75/65ºC | 524 | 742 | 815 | 1081 | 712 | 982 | 1094 | 1485 | 772 | 1059 | 1183 | 1615 | 889 | 1207 | 1356 | 1869 |
| 800 | 75/65ºC | 579 | 819 | 911 | 1215 | 791 | 1088 | 1228 | 1671 | 858 | 1174 | 1329 | 1818 | 990 | 1340 | 1526 | 2104 |
| 900 | 75/65ºC | 634 | 895 | 1007 | 1350 | 870 | 1194 | 1363 | 1858 | 945 | 1289 | 1476 | 2021 | 1092 | 1474 | 1697 | 2340 |
| 1000 | 75/65ºC | 688 | 971 | 1103 | 1485 | 948 | 1300 | 1497 | 2045 | 1032 | 1404 | 1623 | 2224 | 1193 | 1608 | 1868 | 2575 |
| 1100 | 75/65ºC | 743 | 1047 | 1199 | 1619 | 1027 | 1406 | 1632 | 2231 | 1118 | 1520 | 1769 | 2427 | 1295 | 1742 | 2038 | 2810 |
| 1200 | 75/65ºC | 797 | 1123 | 1295 | 1754 | 1106 | 1512 | 1766 | 2418 | 1205 | 1635 | 1916 | 2630 | 1397 | 1875 | 2209 | 3046 |
| 1400 | 75/65ºC | 906 | 1275 | 1487 | 2023 | 1264 | 1723 | 2035 | 2791 | 1378 | 1866 | 2209 | 3037 | 1600 | 2143 | 2550 | 3516 |
| 1600 | 75/65ºC | 1016 | 1427 | 1679 | 2292 | 1422 | 1935 | 2304 | 3164 | 1551 | 2096 | 2503 | 3443 | 1803 | 2411 | 2892 | 3987 |
| 1800 | 75/65ºC | 1125 | 1579 | 1872 | 2561 | 1580 | 2146 | 2572 | 3537 | 1725 | 2327 | 2796 | 3849 | 2007 | 2678 | 3233 | 4457 |
| 2000 | 75/65ºC | 1234 | 1731 | 2064 | 2830 | 1737 | 2358 | 2841 | 3911 | 1898 | 2557 | 3090 | 4255 | 2210 | 2946 | 3574 | 4928 |
| 2300 | 75/65ºC | 1397 | 1959 | 2352 | 3234 | 1974 | 2675 | 3244 | 4470 | 2158 | 2903 | 3530 | 4865 | 2515 | 3347 | 4086 | 5634 |
| 2600 | 75/65ºC | 1561 | 2188 | 2640 | 3638 | 2211 | 2993 | 3648 | 5030 | 2418 | 3249 | 3970 | 5474 | 2820 | 3748 | 4598 | 6340 |
| 3000 | 75/65ºC | 1779 | 2492 | 3024 | 4176 | 2526 | 3416 | 4185 | 5777 | 2764 | 3710 | 4556 | 6287 | 3226 | 4283 | 5281 | 7281 |
* - system Purmo AIR stosować można z grzejnikami typu Compact od długości 700 mm, z grzejnikami Ventil Compact od długości 800 mm.
[W] для теплоносителя с температурой питания и возврата 75/65oC и для температуры воздуха в отапливаемом помещении 20oC, согласно норме PN-EN 442.
Приведённые выше таблицы касаются примерных, наиболее показательных условий, имеющих место в помещении: расчётные параметры системы 75/65/20oC, вакуумметрическое давление в помещении 10 Па, при котором система должна доставлять в помещение 10 литров воздуха в секунду. Предполагается, что 10% наружного воздуха проникает в помещение посредством инфильтрации, то есть вне системы «PURMO Air». Для проектирования и подбора вентиляционных радиаторов используется программа «PURMO Air». Последню версию программы можно найти на нашем Интернет-сайте: http://www.purmo.com/ или получить на диске CD, содержащем программы в помощь проектированию.
Программа позволяет выбрать оптимальное решение. Кроме полной мощности программа указывает среднюю температуру воздуха над радиатором ti,отн:
Чтобы вентиляционная система функционировала безопасно, температура воды в отопительной системе должна управляться погодной автоматикой. Рекомендуется применение термостатических клапанов с вынесенным датчиком, расположенным под радиатором. В момент, когда термостат выключит радиатор, подаваемый воздух начинает охлаждаться, приводя к его повторному открыванию. Пульсирующее действие клапана предупредит чрезмерное охлаждение подаваемого воздуха и исключит риск замерзания радиатора.
Частота замены фильтрующего элемента находится в зависимости от качества наружного воздуха. Качество воздуха в большом городе значительно хуже, чем качество воздуха в пригородных зонах. Поэтому состояние фильтрующего элемента необходимо проверять через равные промежутки времени таким образом, чтобы найти соответствующий временной интервал между заменами.
Фильтр необходимо заменить тогда, когда он очевидно загрязненён. Как правило, фильтрующий элемент заменяют раз в год. Чтобы очистить фильтрующий элемент или заменить его, необходимо отвернуть болты, крепящие фильтрующую камеру, а затем открыть её. Поверхности канала можно чистить при помощи пылесоса или щётки.
Перепад давления, регулировка
В целях обеспечения правильной работы вентиляции необходимо во время проектирования учитывать требуемую разность давлений, т. е. вакуумметрическое давление. Оно не должно быть слишком высоким по отношению к герметичности здания, поскольку в этом случае воздух будет проникать внутрь через неплотные соединения. Рекомендуемое перепад давления не должно превышать 12 Па. Форма приточного канала и наружная входная решётка влияют на потери давления. Эти элементы должны быть учтены при проектировании.
Если здание негерметично, в помещения проникнет также неконтролируемое количество наружного воздуха, повышая потребность в тепловой энергии. В этом случае мы должны пересматривать габариты радиаторов с учётом дополнительных потерь тепла.
Полностью открытый канал подачи наружного воздуха позволяет доставлять свежий воздух в помещение, рассчитанное на двух человек.
В помещениях, рассчитанных на одного человека, в канале устанавливается специальный фланец (входящий в состав комплекта), ограничивающий количество подаваемого воздуха наполовину. Кроме того «PURMO Air» делает возможным простой способ перекрывания доступа воздуха – например, в случае опасности пожара или утечки газа. Достаточно повернуть фильтрующий элемент на 90o, перекрыв боковой поверхностью элемента поток воздуха, проходящего через радиатор .
| Дополнительная регулировка количества вентиляционного воздуха происходит при помощи вытяжных решёток, расположенных в кухнях, ванных комнатах и туалетах. Полное количество вентиляционного воздуха может регулироваться вентилятором или дроссельными заслонками |
|
Звукоизоляция:
| Метод измерения: | ISO 140-10:1991 |
|---|---|
| Классификация: | ISO 717-1:1996 |
| Площадь отнесения: | 10 m |
Фланец, ограничивающий количество подаваемого воздуха наполовину, повышает звукоизоляцию примерно на 3 дБ.
![]() |
Сокращения: f - частота, Гц Dn,e - Звукоизоляция вентилятора свежего воздуха на одной трети октавной полосы, дБ Dn,e,w - Коэффициент изоляции вентилятора свежего воздуха, дБ Ctr - Коэффициент корректировки – шум, вызываемый дорожным движением, дБ C - общий коэффициент корректировки, дБ |
![]() |
PA11
|
![]() |
PA22
|
Устройство PURMOAir используется только с радиаторами типа 11, 22, 33. Невозможно использовать устройство с радиаторами типа 10,20,30.
Производится два типа устройства PURMOAir: PA11 и PA22. Первый (PA11) для работы с радиаторами типа 11, другой (PA22) для работы с радиаторами типа 22 и 33 (нужно помнить, что при использовании радиаторов V33 должны быть с правосторонним подключением).

Условия гарантии на радиаторы «Пурмо»

Радиаторы «Пурмо» производятся с соблюдением правил европейской системы контроля качества ISO 9001. Благодаря строгой процедуре каждый радиатор подвергается ряду связанных с проверкой действий, в том числе испытанию под давлением на герметичность. Поэтому качество наших изделий очень высоко.
На радиаторы "Пурмо" предоставляется 10-летняя гарантия.
Условием предоставления гарантии является:
Рекомендуется наличие у производителя монтажных работ сертификата, выданного ООО «Реттиг Хитинг», подтверждающего квалификацию в области установки радиаторов «Пурмо».
Гарантия не будет распространяться на радиаторы, установленные в системе центрального отопления:
Запрещается удалять воду из всей системы или её части и оставлять в таком состоянии.
Это относится также к новым системам, прошедшим испытание на герметичность.
В случае необходимости удаления воды из системы, например, по причине ремонта или консервации, воду необходимо удалить только из той части системы, в которой это необходимо. После выполнения работ пустую систему необходимо немедленно вновь наполнить водой.
Наполнение системы водой и пополнение необходимо производить при помощи насоса из промежуточного открытого резервуара. В небольших системах мощностью до 30 кВт наполнение можно производить от водопроводной сети при помощи разъёмного соединения с возвратным клапаном.
Количество воды, используемой для наполнения и пополнения системы центрального отопления, необходимо контролировать, например, при помощи водомера.
Давление
Рабочее давление в системе центрального отопления с радиаторами «Пурмо» не должно превышать 10 бар (для радиаторов «Пурмо План» – 6 бар). В высоких и высотных зданиях необходимо необходимо применять разделение системы на зоны. Проверку системы на герметичность необходимо производить при пробном давлении, равном рабочему давлению в данной системе плюс 2 бар, однако не меньшем, чем 4 бар.
Максимальное допустимое давление во время испытания на герметичность системы составляет 12 бар (для радиаторов «Пурмо План» – 8 бар).
Установка
Радиаторы необходимо устанавливать, не удаляя индивидуальной заводской упаковки. Эта упаковка должна оставаться на радиаторе даже в том случае, если система центрального отопления включается для обогрева здания во время отделочных работ или для просушки здания. Рекомендуется удаление упаковки пользователем помещения по окончании всех отделочных работ.